Loading...

Présentation

Accueil / Présentation

Qui sommes nous?

La Société d’Aménagement et de Travaux Publics ( S.A.T.P. - SARL ) ; Sarl UNI-PERSONNELLE au capital de 5 000 000 de francs cfa est une société spécialisée dans le foncier; la gestion immobilière; le lotissement; le bâtiment; les VRD; et autres…

Grâce à son sérieux et à son savoir-faire professionnel depuis sa création, elle occupe aujourd’hui une place de choix dans le secteur du BTP en Côte d’Ivoire. S’appuyant sur une équipe jeune d’ingénieurs; de techniciens et d’ouvriers qualifiés et expérimentés ainsi qu’un management de qualité des projets qui lui sont confiés, elle n’a pas tardé à gagner la confiance de nombreux clients privés et publics. Professionnalisme, rigueur et sérieux dans le travail mais aussi et surtout le respect des engagements contractuels (qualité, coûts et délais), constituent le leitmotiv de notre entreprise

Mot du dg

TEXT

TEXT

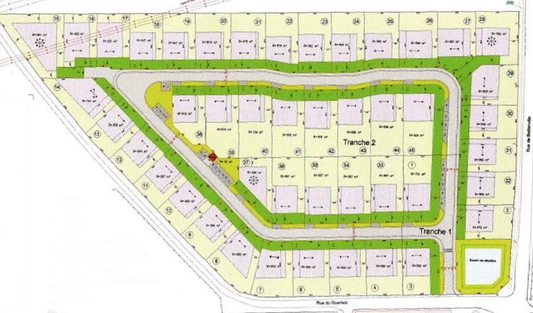
PLAN & LOTISSEMENT
CONSTRUCTION
GESTION IMMOBILIERE
Location d’engins &
Appareils Topo

Exécution et Etude VRD
Tirage de plans
Photocopie
Appareils Topo

Notre histoire

Jeune équipe dynamique et dévouée, prête à tout pour la satisfaction de ses clients et partenaires
Dans l’informel pendant longtemps, la Société a été créée le 23 Décembre 2016. Donc existe légalement depuis 1 an et fonctionne légalement depuis le premier trimestre 2017.

Une équipe très jeûne, dynamique, motivée et compétentes pour vous aider à accomplir vos réalisations

DG

DAAF

DCM

DT

Sécrétariat

Autres